BOSS Two Bed Plus
BOSS Two Bed Plus
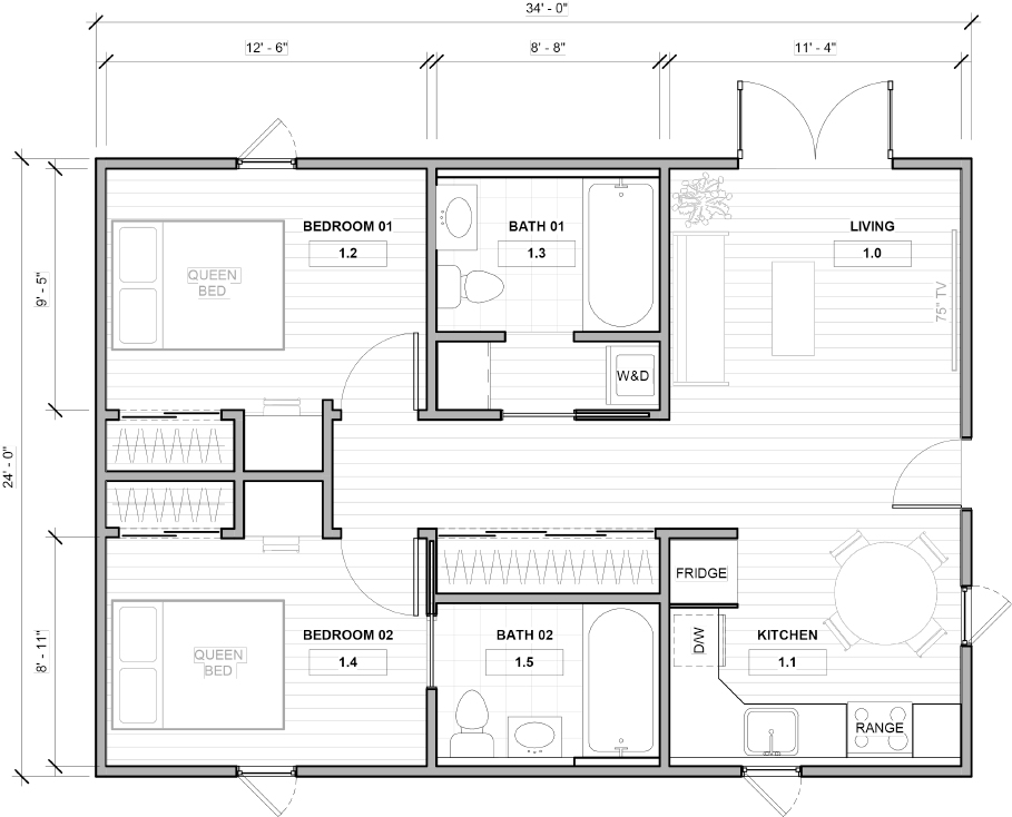
A two bedroom design with a master suite and a bathroom for guests providing more functionality.
- 24' x 34'
- 800 sqft
- 2 Bathroom

Gallery
Roof Styles
-
Pent Roof -
Lean-To Roof -
Classic Roof -
Gable Roof
Tech Specs
STARTING AT
$167,995 plus installation
SQUARE FOOTAGE
800 total sqft
UNIT DIMENSIONS
Unit Footprint: 24′ x 34′
Unit Height: 11′- 6″
EXTERIOR
Structure
- Precision-engineered light-gauge steel framing.
Roof
- Painted Galvinized Steel: Corrugated or standing seam profile.
Doors & Windows:
- Material:
- Black aluminum frame
- Double pane glass
- Window Sizes:
- Medium Window: 28″ x 42″
- Large Window: 28″ x 64″
- Door Size:
- Entry Door: 36″ x 80″
- Door & window locations are customizable based on client’s preferences.
INTERIOR
Cieling Height
- 8′- 0″ – 10′- 6″
- All interior specs included in BOSS Homes standard package.
- Boss’ standard interior package includes but is not limited to:
-
- Interior doors & hardware
- Cabinetry
- A/C system (minisplit)
- Electrical & plumbing fixtures
- Finish flooring
- Paint
- Kitchen appliances excluded.
-
Standout Features
Roof Assembly
- 6″ of PIR insulation for a total R-Value of 42
- Painted Galvanized Steel Roof
- Weatherproof interlocking panels
Wall Construction
- 4″ of PIR insulation for a total R-Value of 42
- Weatherproof interlocking panels w/ steel studs
- Drywall interior, cement board exterior
Fire Safety
- FM Approved Class 1: Highest fire rating for building materials.
- Self extinguishing PIR insulation
Doors
- Aluminum doors solid and glass options
Windows
- Aluminum windows small, medium and large options.
Codes
- Meets all International Building Codes
- Meets California Building Codes
Sustainability
- Eco Friendly construction with 35% recycled content (post-consumer bottles).
Warranty
- 10 Year Structural Warranty
Design Your Own





